Se VENDE casa nueva en Residencial Puerta de Hierro Golf & Spa
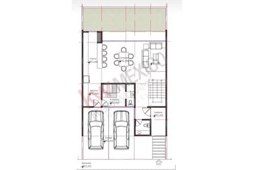
<p>Residencia en VENTA ubicada al Sur Poniente de Tuxtla Gutiérrez, a 500 metros de la entrada al Club de Golf Campestre, cerca a la Iglesia de San Patricio, colegios de prestigio como el Instituto Andes y Emilio Rosenblueth y de fácil acceso a zona comercial con restaurantes, mercados, gasolineras, plazas comerciales y comercios locales.<br><br>El Fraccionamiento cuenta con barda perimetral, caseta de vigilancia y acceso restringido las 24 horas, servicios subterráneos (agua potable, luz y drenaje), áreas verdes y elegantes amenidades.<br><br>Planta Baja:<br>- Garaje techado para 2 vehículos.<br>- Vestibulo.<br>- Sala/Comedor.<br>- Medio baño.<br>- Cocina integral con barra de mármol, parrilla, campana, alacena y tanque de gas estacionario.<br>- Patio trasero.<br>- Cuarto de servicio con baño.<br>- Cisterna de 10 mil litros.<br><br>Planta Alta:<br>- Recámara principal equipada con vestidor y baño completo con doble lavamanos y canceles de cristal.<br>- Sala de televisión.<br>- 2 Recámaras equipadas con closet y baño completo con canceles de cristal.<br>- Centro de lavado con preparación para lavadora y secadora .<br><br>= AMENIDADES =<br>Casa Club 1:<br>- Restaurante Adela.<br>- Alberca con chapoteadero.<br>- 2 canchas de tenis.<br>- 1 cancha de pádel.<br>- 1 cancha de futbol rápido.<br>- Área de juegos infantiles.<br>- Gimnasio con sauna.<br><br>Casas Club 2:<br>- Alberca semi-olimpica.<br>- Chapoteadero.<br>- Sala de usos múltiples con aforo de 80 personas.<br>- Cuarto de vapor.<br>- Gimnasio.<br>- Área de Juegos infantiles<br>- Golf Córner de práctica (campo de práctica con terreno de casi una hectárea, con Targets y Greens).<br>- Vigilancia las 24 hrs con casetas de vigilancia tanto principal como internas, equipadas con circuito cerrado.<br>- Preciosas áreas verdes con senderos y canal natural, así como un pequeño lago artificial.<br><br>* KW REAL Keller Williams Bienes Raíces, D 28 8 S.A.P.I. DE C.V.<br>* Boulevard Belisario Domínguez número 2950, Tuxtla Gutiérrez, Chiapas, C. P. 29060.<br>Correo para solicitudes, sugerencias o quejas kwreal@kwmexico.mx<br>Horario de atención: 9:00 a.m. a 5:00 p.m., de lunes a viernes.<br>* Número de Registro Contrato de Adhesión: 73-2023, de fecha 5 de enero de 2023.<br>* El inmueble se encuentra libre de gravamen.<br>* El precio señalado es en pago de contado, no incluye gastos notariales, de avalúo, ni gestoría; sÍ la propiedad desea adquirirse mediante un crédito, señalar que el precio total se determinará en función de los montos variables de concepto de crédito y notariales que deberán ser consultados con los promotores.<br>* Formas y planes de pago de los inmuebles: (Contado y crédito bancario).<br>*Aviso de privacidad: https://www.kwreal.mx/avisosprivacidad<br>* Consulta disponibilidad y vigencia.<br>*Las imágenes son ilustrativas NO incluye muebles.</p>
- 3Habitaciones
- 250m2Área total
- 3Baños


























