PREVENTA PROYECTO RESIDENCIA EN VENTA SIERRA ALTA, CARRETERA NACIONAL, MONTERREY
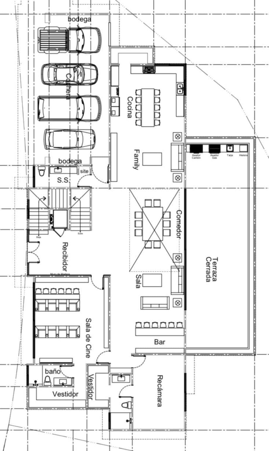
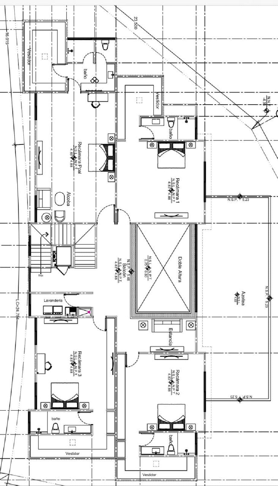
Proyecto Sierra Alta 9o. Sector Hermosa Residencia Pre venta Entrega julio 2025 - Acabados de lujo Premium - Llave en mano - Terreno 776m - Construcción de 1029m2 - Frente 40m - En esquina - Patio jardín de 500m2 - 3 niveles DISTRIBUCIÓN: Planta baja : - Cochera para 4 autos - Cocina con alacena y family room muy amplios - Sala comedor bar con doble altura - Medio baño de visitas - Sala de cine permanente con baño completo - Recámara independiente con baño y closets completo Planta alta : - 4 recámaras muy amplias cada una con baño completo y closets independientes - Estancia y lavandería - Doble altura en Sala-Comedor Sótano: - Cuarto de juegos techado abierto con 2 medios baños y preparación para asador con su barra de granito y tarja - Cuarto de servicio Hermosas vistas a las montañas - 5 Recámaras - Sala de cine - 7 Baños completos - 3 Medios baños - Cisterna 5000 litros - Alberca con equipos - Cocina integral de marca completa con granito y isla para 10 personas - Climas 10 toneladas - 12 paneles solares - Pisos de mármol en toda la casa - Ventanas doble vidrio de Cuprum euro vent - Plafones decorativos en áreas comunes de planta baja y Recámara principal Incluye: - Closets de diseño en Recámaras - Lavabos de mármol - Iluminación led - Preparación para Casa inteligente - Preparación para elevador
- 5Habitaciones
- 1029m2Área total
- 7Baños






















