Preventa, "Casa Escondida" en Club de Golf Valle Escondido
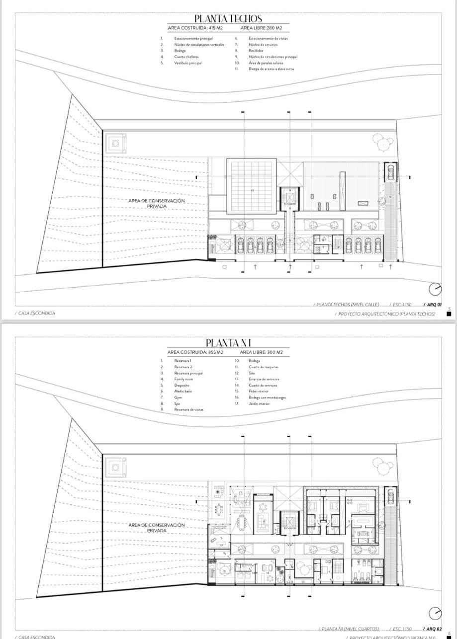
¡Bienvenido al paraíso del Club de golf en Valle Escondido! Te invitamos a ser parte de la exclusividad y el lujo en nuestro nuevo proyecto: una espectacular casa en preventa en el prestigioso Club de Golf de Valle Escondido. Con una impresionante construcción de 2,020 metros cuadrados y de terreno 1,700m2 más 1,800m2 de zona federal, esta residencia redefine el concepto de elegancia y comodidad. Planta Techos (área construida 415m2 y área libre 280m2). Estacionamiento principal, Bodega, Cuarto de Choferes, Vestíbulo Principal, Estacionamiento de Visitas, Paneles Solares y Rampa de Acceso eleva autos. Planta N I (área construida 855m2 y área libre 300m2). Recamara 1, Recamara 2, Recamara Principal, Family Room, Despacho, Gym, Spa, Recamara de Visitas, Bodega, Cuarto de Maquinas, Site, Estancia de Servicios, Cuarto de Servicios, Patio Interior, Bodega con Montacargas y Jardín Interior. Planta N II (área construida 800m2 y área libre 850m2). Ante Sala (fireplace), Estancia Principal, Comedor Principal, Cava, Pantry, Cocina Principal, Alacena, Cuarto de Lavado, Patio de Servicios, Jardín Interior 1 (estancia), Terraza Principal, Jardín Interior 2 (salón doble altura), Cuarto de Refrigeración, Bar, Hall Principal/Salón de Eventos, Biblioteca/Despacho, Cocina de Servicios con Montacargas, Terraza 2, Jardín, Espejo de Agua. Planta N III (área de construcción 1,200m2 y área libre 200m2). Sala/Comedor, Salón de Juegos, Barra, Bodega/Cuarto de Refrigeración, Cine, Elevador de Autos, Estacionamiento de Exhibición, Área de taller/Restauración de Autos, Alberca Techada, Vestidor, Baños de Alberca, Cuarto de Máquinas, Acceso por Campo de Golf y Deck Exterior. Imagina despertar cada mañana rodeado de la serenidad de los campos verdes, respirando aire fresco y disfrutando de las vistas panorámicas que solo Valle Escondido puede ofrecer. Esta residencia ofrece un estilo de vida único para aquellos que buscan lo mejor de lo mejor. Con acabados de lujo que superan todas las expectativas, cada detalle ha sido cuidadosamente seleccionado para brindar un ambiente de sofisticación y distinción. Desde las amplias y luminosas áreas sociales hasta las habitaciones diseñadas para el máximo confort, cada espacio refleja un estándar de calidad inigualable. Además, como parte del Club de Golf de Valle Escondido, tendrás acceso exclusivo a una variedad de amenidades de clase mundial, incluyendo canchas de golf de campeonato, instalaciones deportivas, restaurantes gourmet y mucho más. No pierdas la oportunidad de vivir en el lugar donde el lujo se encuentra con la naturaleza. Contáctanos hoy mismo para más información y asegura tu lugar en este enclave de distinción en Valle Escondido. ¡Tu hogar de ensueño te espera!
- 6Habitaciones
- 2020m2Área total
- 10Baños







































