Preventa, Bosque Esmeralda
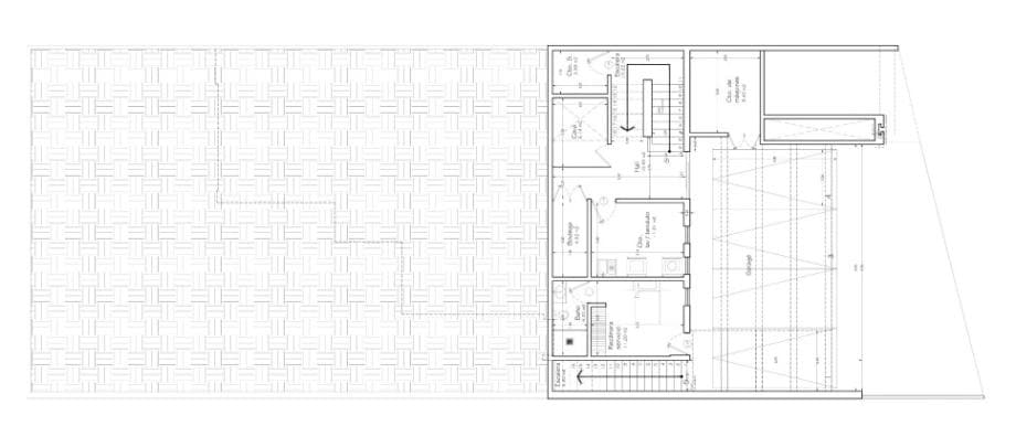
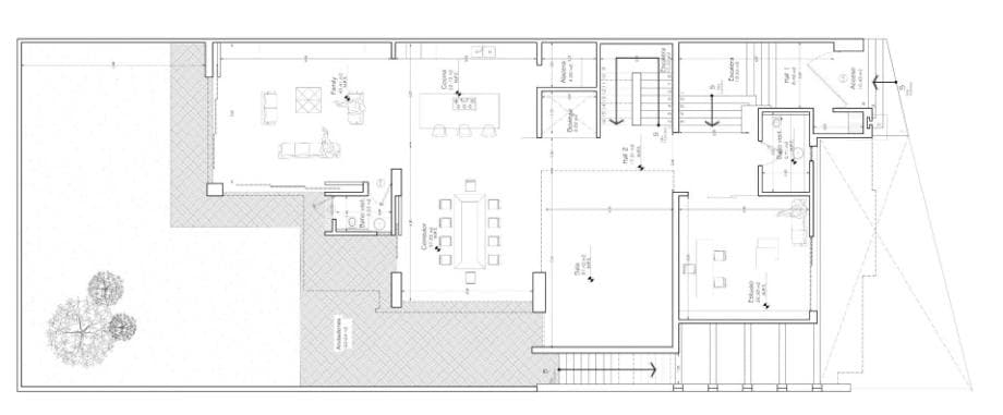
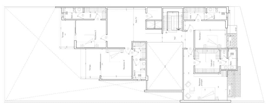
Bienvenido a la preventa exclusiva en Bosque Esmeralda, donde encontrarás una casa que lo tiene todo: ubicación privilegiada, espacios amplios y un diseño excepcional. Con capacidad para hasta 7 autos en su garaje y la opción de incluir un elevador para mayor comodidad, esta casa está diseñada pensando en tus necesidades diarias. Además, cuenta con un cuarto de lavado, cuarto de servicio, entrada lateral, bodega, cuarto de máquinas y un cuarto de seguridad, que abarcan un total de 128.23m2. En la planta baja (223.54m2 más 300.46m2 de área libre), encontrarás un amplio hall de entrada, un elegante medio baño de visitas, un estudio ideal para trabajar desde casa, una estancia luminosa con chimenea de doble cara que se abre hacia el comedor, una cava para los amantes del vino, una cocina totalmente equipada con una isla central y una alacena, y un acogedor family room con vistas al jardín. En la planta alta (263.96m2), te espera un oasis de confort y privacidad. La recámara principal cuenta con una terraza privada, un amplio vestidor, un lujoso baño con doble lavabo y doble regadera. Además, las recámaras 1, 2 y 3 también disponen de terraza, vestidor y baño completo con iluminación natural, y una sala de TV para disfrutar de momentos de relax en familia. Esta casa también está equipada con todas las comodidades modernas, incluyendo una cisterna de agua potable, captación de aguas pluviales, una cisterna de aguas grises para riego, paneles solares y un calentador solar, que te permitirán vivir de manera sustentable y eficiente. No dejes pasar esta oportunidad única de adquirir tu hogar ideal en Bosque Esmeralda. La entrega está programada para junio de 2024. ¡Contáctanos hoy mismo para más detalles y asegura tu lugar en esta exclusiva preventa!
- 4Habitaciones
- 615m2Área total
- 4Baños














