Departamento en Venta, Colonia Real de Juriquilla, Querétaro
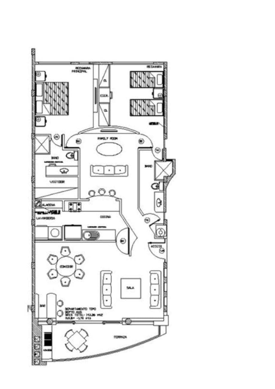
Residencial Juriquilla Hills, te ofrece un extraordinario lugar para vivir bonito con vistas espectaculares, 24 departamentos de lujo, en 3 torres de 6 departamentos tipo, y 2 P.H., en cada una. Departamentos con sala comedor, área de cantina, family room, 2 recámaras de gran tamaño, 2 baños completos, la master cuenta con baño integrado y vestidor, terraza con asador tipo argentino y tiro. Cocina equipada abierta con barra, despensa, área de lavado con closet de blancos. 2 lugares de estacionamiento en batería. Amenidades: Sky view, alberca, jacuzzi, baños con regadera, salón para adultos, gimnasio, salón de eventos para 30 personas, 6 estacionamientos para visitas, caseta de vigilancia. 4 niveles por torre. Cuenta con cisterna de 66,000 lts. Cuota de Mtto. $1,800.00. Cuota única por mobiliario US$ 1,350 Ven a visitarlos y elije los acabados y la distribución que más se apegue a tus necesidades.
- 2Habitaciones
 - 145m2Área total
 - 2Baños
 











