Casa venta en condominio Riverside Bosque Real
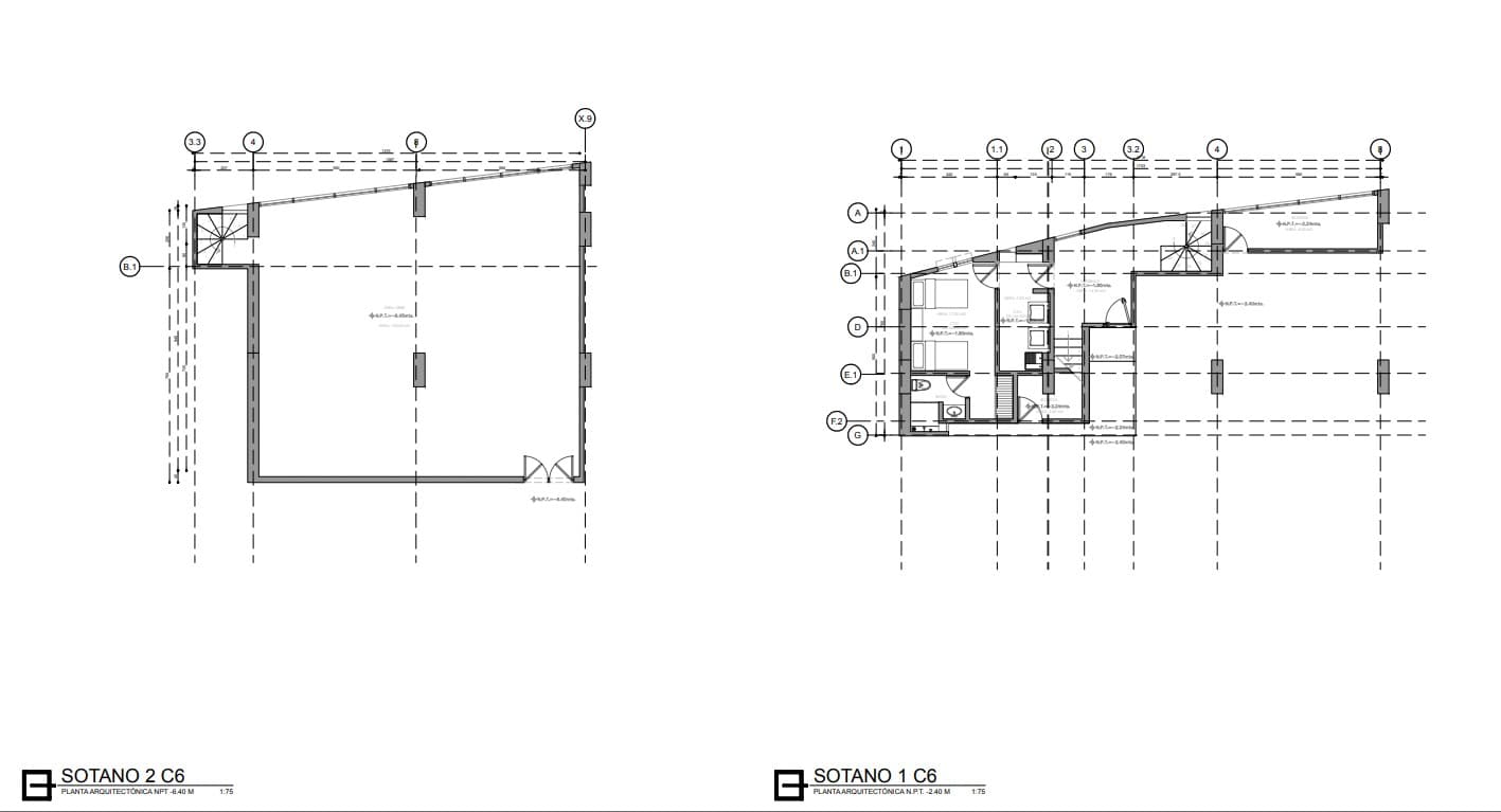
Casa en venta, Excelente oportunidad. Se entrega en la última etapa de construcción, para que se coloquen los acabados de acuerdo a tú estilo. Se encuentra En RIVERSIDE, en una de las mejores zonas de Bosque Real, con accesos controlados. Condominio de solo 8 casas Casa cuenta con 606m2 con la siguiente distribución: Planta Baja: 128 m2 Comedor de 33.85 m2, Sala de 33.85 m2, 1/2 Baño 3.0 m2, Cocina 23.70 m2, Alacena 4.2 m2, Cuarto de servicio 14 m2, Baño de servicio 3.0 m2, Cuarto de lavado 7 m2, bodega 3.5 m2., 40 m2 de jardín. Planta Alta: 148 m2 Family 9.0 m2, Rec. Principal 20.65 m2, Rec. Principal vestidor 9.18 m2, Rec. Principal baño 10.0 m2, Rec. 1 27.35 m2, Rec 1 vestidor 6.4 m2, Rec 1 baño 5.7m2, Rec 2 13.65 m2, Rec 2 vestidor 4.3 m2, Rec 2 baño 5.45 m2, Closet blancos 2.10 m2. Roof Garden: 137.9 m2 Terraza sin pérgola 53 m2, Terraza con pérgola 23.13, Vegetación 55.58 Sótano: Salón personal 120 m2 Se puede adaptar dependiendo las necesidades. Amenidades: Ludoteca, salón múltiples, Precio sujeto a cambio sin previo aviso, disponibilidad de inventario, no incluye impuestos, gastos notariales y avalúos Las imágenes mostradas son renders contamos con diferentes opciones de casas Entrega inmediata. Diferentes opciones de crédito.
- 3Habitaciones
- 546m2Área total
- 5Baños











