casa en Yerbaniz, Misiones l, Santiago, N.L
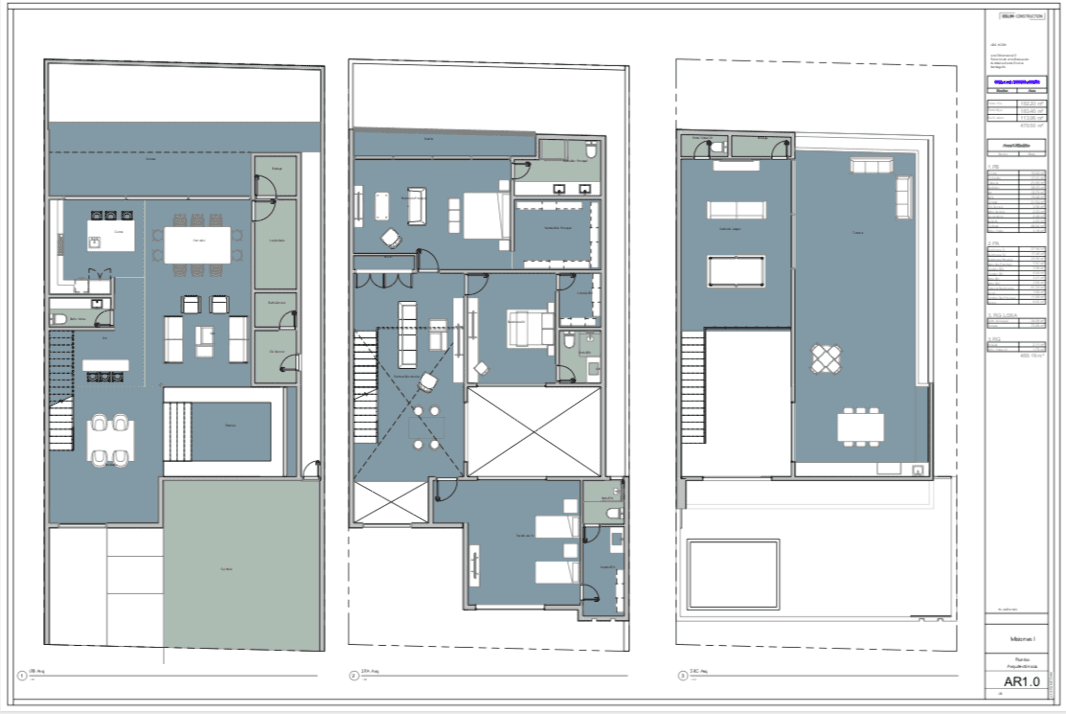
Excelente casa en proyecto, se entrega el proximo año entere enero y febrero del 2022 .Sistema de casa inteligente..PLANTA BAJA.Cochera doble.recibidor.Amplia sala y comedor.Cocina.Escalera flotante.Iluminación led.2 Baños.Cuarto de servicio y Lavandería.Bodega.La cocina incluye barra comedor con preparación para cocina integral..Área de sala comedor y bar con acceso directo al jardín posterior.PLANTA ALTA.3 Recamaras con baño y vestidor con preparación para closets.Estancia Familiar.El Master Room tiene un amplio balcón.ROOF GARDEN.Sala de juegos y entretenimientos.Terraza con preparación para asador Fogatero.Sala de descanso.1 Baño
$8,500,000
Santiago-Monterrey 620, El Yerbaniz, 67302 Santiago, N.L., Mexico
- 3Habitaciones
- 480m2Área total
- 3Baños
💬 ¡Hola! Cuéntanos un poco más sobre ti con Habita IA y te mostraremos opciones que realmente se ajusten a lo que buscas.
🏠 Haz clic aquí y encuentra la casa ideal para ti

