CASA EN VENTA EN LA LOMA CLUB DE GOLF
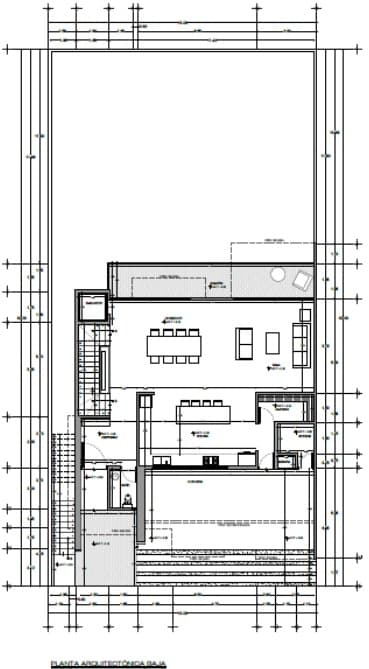
CASA EN VENTA, 450 M2 DE TERRENO, 610.80 M2 DE CONSTRUCCION, 4 RECAMARAS CON VESTIDOR Y BAÑO, HALL DE T.V. BALCON, COCINA INTEGRAL, SALA, COMEDOR, MEDIO BAÑO, SALON DE JUEGOS, JARDIN, ALBERCA, COCHERA PARA 2 AUTOS, CUARTO DE SERVICIO, CUENTA CON UN LOFT INDEPENDIENTE, CON RECAMARA CON BAÑO COCINA Y ESTACIONAMIENTO PARA 1 AUTO. SE VENDE CON ACCION SE VENDE SIN MUEBLES PARA ENTREGAR EN DICIEMBRE DEL 2024
$17,000,000
CAÑANDA SANTA FE (LA LOMA CLUB DE GOLF) ,San Luis Potosí, San Luis Potosí, Club de Golf la Loma CP. 78211
- 1Habitaciones
- 450m2Área total
- 5Baños
💬 ¡Hola! Cuéntanos un poco más sobre ti con Habita IA y te mostraremos opciones que realmente se ajusten a lo que buscas.
🏠 Haz clic aquí y encuentra la casa ideal para ti








