CASA AL NORTE DE MÉRIDA EN PRADERAS DEL MAYAB, CON ALBERCA Y REGALOS (MOD.BAMBÚ)
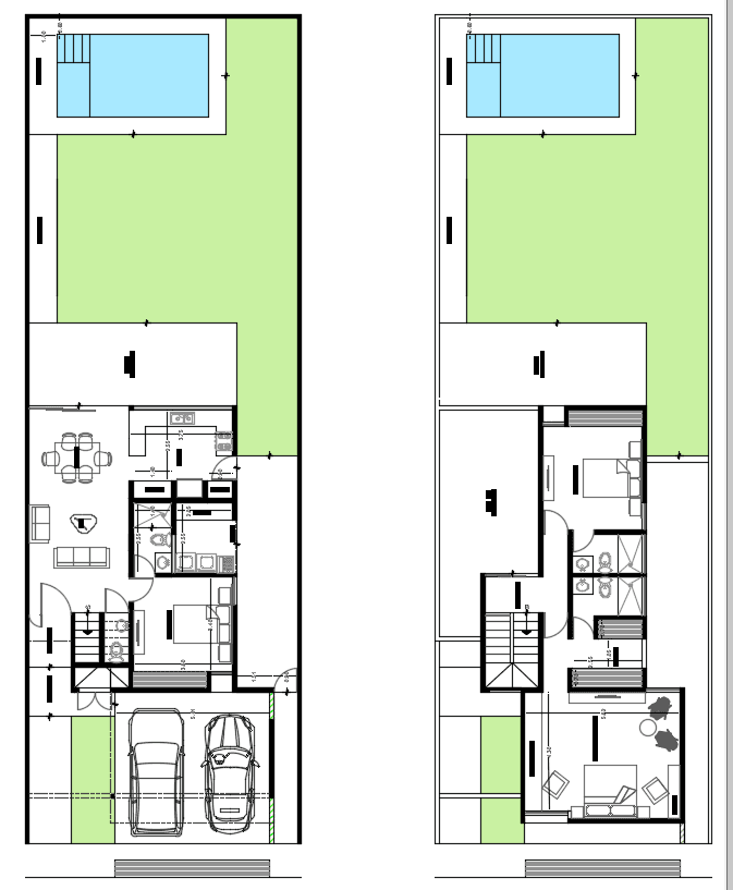
Casa Bambú, está ubicada en Praderas del Mayab, privada que cuenta con vigilancia 24/7, casa club con cafetería, salón de eventos, piscina semiolímpica, chapoteadero, 2 canchas de pádel, gimnasio, área de juegos y ludoteca y otras amenidades. <br><br> Esta Residencia se localiza al norte de la Ciudad de Mérida, zona con una conexión perfecta a Plaza la Isla y Fashion Mall Altabrisa (15 min). Además la carretera de este desarrollo te conecta al Puerto de Chicxulub Yucatán. <br><br> La fachada es moderna y cuenta con el garaje semitechado para dos autos. <br><br> En Planta baja - Sala y comedor con ventanales al jardín - Cocina con meseta de granito - Alacena y bodega - Medio Baño de visitas - Área para lavadora y secadora, techada y cerrada - Recamara #3 con closet y baño completo para tu privacidad - Piscina de 3mx5m <br><br> En planta superior - Recamara Principal con baño completo y closet vestidor. - Recamara #2 con closet y baño completo - Balcón muy amplio tipo roof top <br><br> Entregamos de manera inmediata, aceptamos créditos bancarios, Infonavit y otros. Cuota de mantenimiento $500 aproximado (sin el uso de la casa club). <br><br> **REGALOS DURANTE JUNIO Y JULIO 2024: Cuota de mantenimiento gratis por un año, Refrigerador, Estufa y un Horno eléctrico. Aprovecha <br><br> Precios y disponibilidad vigentes al 19 de Junio 2024 <br><br> Proporcione a su asesor la clave RCV596315-149
- 3Habitaciones
- 182m2Área total
- 4Baños
- 1Estacionamientos



















